上一期发布了关于冠华苑小区两居的设计图,得到了网友的一致认可和好评,很多冠华苑小区的业主提议设计一下一居的平面图,恰好苏皖工长俱乐部的工长已经有一居户型在开工,平面设计已经做好,接下来在给大家分享下。
冠华苑小区一居设计图一
5-BDG户型,一室两厅一卫约68㎡,此户型存在于22-4#,当然本户型仅供参考,最终以签合同户型为准。

户型解析:卧室:朝阳,保证充足采光。 厨房:明厨设计,让油烟远离室内。 其他:户型方正,增加空间使用率。 餐厅:餐厅客厅分而不离,简洁便利。
冠华苑小区一居设计图二
2-BS户型,一室两厅一卫约64㎡,此户型存在于16-4#楼,当然本户型仅供参考,最终以签合同户型为准。

户型解析:卫生间:明卫设计,保障空气流通。 厨房:明厨设计,让油烟远离室内。 玄关:进深短,增加空间使用率。 客厅:客厅餐厅分而不离,简洁便利。
冠华苑小区一居设计图三
3-BS户型,一室两厅一卫约80㎡,此户型存在于19-4#楼,当然本户型仅供参考,最终以签合同户型为准。

户型解析:卧室:卧室朝阳,保证充足采光。 厨房:厨房宽敞,家庭主妇最爱。 玄关:进深短,增加空间使用率。 客厅:客厅餐厅分而不离,简洁便利。
冠华苑小区一居设计图四
5-Bd′户型,一室两厅一卫约65㎡,此户型存在于16-3#楼,当然本户型仅供参考,最终以签合同户型为准。

户型解析:卧室:我是朝阳,保障全天阳光进入室内。 厨房:明厨设计,减少室内油烟。 其他:户型方正,增加空间使用率。 客厅:客厅餐厅分而不离,备餐用餐更便利。
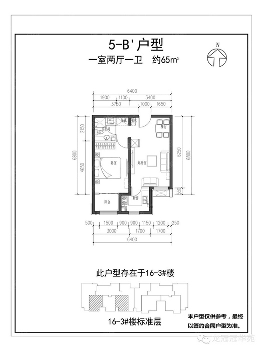
冠华苑小区一居设计图五
5-B′户型,一室两厅一卫约65㎡,此户型存在于16-3#楼,当然本户型仅供参考,最终以签合同户型为准。

户型解析:卧室:主卧朝南,保证充足采光。 厨房:明厨设计,让油烟远离室内。 玄关:进深短,增加空间使用率。 客厅:客厅餐厅分而不离,简洁便利。
冠华苑小区一居设计图六
2-BS户型,一室两厅一卫约64㎡,此户型存在于16-1#楼,当然本户型仅供参考,最终以签合同户型为准。

户型解析:卧室:我是朝阳,阳光全天进入室内。 厨房:明厨设计,减少室内油烟。 其他:户型方正,充分利用每寸空间。 玄关:进深短,增加空间使用率。
看了以后是不是受益匪浅呢?还有更多有关冠华苑小区的户型介绍,敬请关注苏皖工长俱乐部官网www.suwanhome.com ,或者拨打电话400-010-8848,会有专属客服竭诚为您服务。