近日,坐落于槐房西路与西红门路交汇处的公园懿府小区迎来了一波又一波收房热潮。自然也成了各大装修公司备受瞩目的目标。也许有些业主一天要接到无数的装修公司电话访问,或者还有些业主想去看看新房就被现场的业务员“抢来抢去”。
截止发稿时间,主动选择苏皖工长俱乐部及苏皖零家装的公园懿府业主已有三十几户,为此苏皖工长俱乐部整理了两类户型图及设计方案,方便广大公园懿府业主装修及咨询。
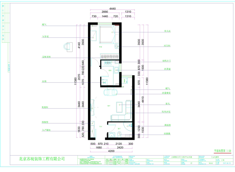
一居户型图设计

平面设计方案均来自苏皖工长俱乐部及苏皖零家装设计师,详情可以电话咨询:400-010-8848
两居户型图设计

平面设计方案均来自苏皖工长俱乐部及苏皖零家装设计师,详情可以电话咨询:400-010-8848
装修效果图展示
https://m.kujiale.com/xiaoguotu/pano/3FO45TY04X56?from=singlemessage&fromqrcode=true
设计效果图来自苏皖工长俱乐部及苏皖零家装设计师,详情可以电话咨询:400-010-8848
温馨提示:复制链接即可查看
致广大公园懿府业主,如果您觉得平面布置图以及效果图符合您的需求,可以联系苏皖工长俱乐部官网www.suwanhome.com 或者致电:400-010-8848,会有专属客服为您接待;如果您在公园懿府现场,可以联系我们的工作人员;如果您想了解苏皖工长俱乐部,查看样板间可以来南三环玉泉营桥西公交站向南100米苏皖大厦,了解更多!