恒大名都嘉园小区一室一厅装修设计,BTV生活+设计师亲自设计

  截止发稿日期,12月份恒大名都嘉园小区即将迎来一波收房热潮,相信更多的业主关注的是拿到钥匙后房子的质量问题,苏皖工长俱乐部已经针对恒大名都小区做了一些收房验房的相关知识,有需要的业主可以在文章底部点击链接即可。而且苏皖工长俱乐部针对恒大名都嘉园小区提供免费验房服务,帮助业主顺利收房。在此,苏皖工长俱乐部预祝各位业主收房顺利。


  收完房后当然是考虑装修了,相信很多业主很在意整体的装修设计,小编想说福利来了。苏皖工长俱乐部拥有BTV生活+特邀设计师,对于小户型的装修设计有独到的见解,空间合理的规划利用也是独树一帜,广受业主好评,相信未来对于恒大名都嘉园一室一厅的业主会有所帮助。


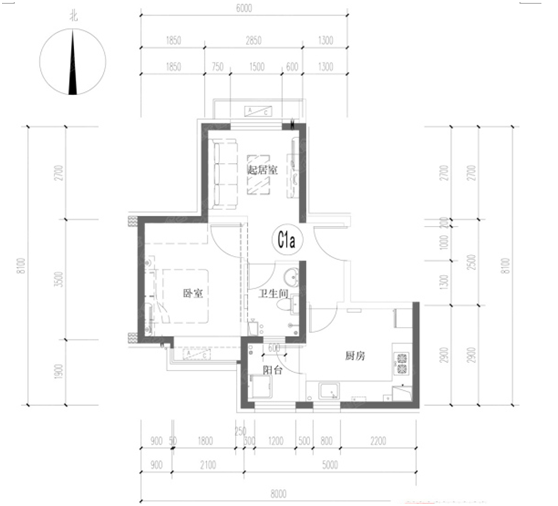
  恒大名都嘉园一室一厅户型图分析

]H$N2{1P2T6RL4U@(PUB9PJ.png

恒大名都一室一厅户型图


  此户型面积约55平方米,属于C1a户型,户型朝向南北,在2号楼里。卧室是大卧室,能够很好的营造私人舒适空间。厨房属于明厨设计,对于小户型来讲,让油烟远离室内是一个值得研究的课题。客厅还算是可以吧,比较宽阔,容易布置家居;这个小户型设计拥有一个阳台,无论是从采光上还是通透性上讲都有很大的益处,也是一个比较值得研究的课题。


  更多的网友朋友还浏览了一下内容


  恒大名都,恒大名都嘉园收房在即,业主必读(内附验房攻略)

  


电话咨询 预约工长