华润花香四季L型户型即一室一厅一卫户型。据小编从华润花香四季互助群里了解到,很多业主有想把一居改为两居的想法。很多业主都是3-4口之家,一居室目前满足不了居住需求。先来看看华润花香四季L型户型原始户型图以及花香苑小区实际测量尺寸图。
华润花香小区L型户型原始结构图

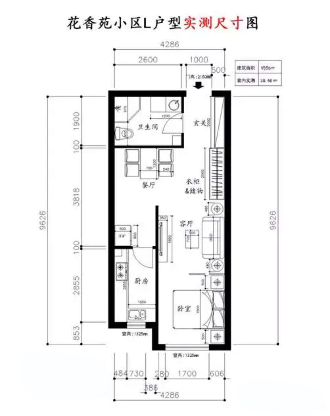
苏皖工长俱乐部对L型户型进行实地测量,面积大概56平方米,户型算是比较方正的。当然本张实测图仅供业主参考,毕竟现在房子还没有交钥匙,一切以交房时的户型及面积为准。
花香苑小区L户型实测尺寸图

花香苑小区L户型改两居方案
据苏皖工长俱乐部在花香苑小区互助群了解到,现在来自BTV生活+的设计师已经设计好很多种一居改两居的方案,而且受到了业主朋友的一致认可。如果有 需求的业主可以联系苏皖工长俱乐部,也可以参观苏皖工长俱乐部在建工地,观看施工现场。
更多的网友还浏览了一下内容