
客厅经过精心布置与电视背景相对的一面特意设计了木条隔断设计,拉伸电视背景墙使之更加完整。墙漆使用米坨色,增加了空间温度使之更加温馨,通过突出墙面饰品自身的魅力展示品位,简单的三角形茶几给空间增加了时尚感。

餐厅是家庭成员享用用美食的地方,同时也可用来开家庭会议。整个空间利用石材和镜面把空间来开,以装饰花瓶衬托,再加上以金属为特色的现代餐桌组合,显得空间十分完美和谐,更能增加主人翁的食欲。
厨房采用L型,合理的利用格局,增加了不少收纳空间。米色实木橱柜,暖色光的衬托,色香味俱全的饭菜在这样的环境中自有一番风味。

书房打了一整面墙书架,可放书、收藏品,在不失美观的前提下增加些储物空间。
用绿色作为床头墙面,三幅风景画搭配拼接色的地毯,打造出一个温馨舒适的卧室,能让忙碌一天的人们彻底的放松自己。

卫生间采用玻璃隔断干湿分离的设计,试空间透亮不压抑,灰与白的结合显得格外内敛有个性。

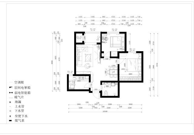
平面户型图