这套房子是个80多㎡的顶层小复式,赠送了一个露台,装修共花了5.5万。整个房子的风格偏宜家风,是设计师结合我们想的和提供的图片参考最后决定的。

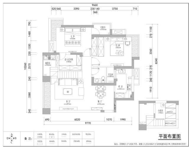
这是原始户型和改造之后的,主要是拆除了部分的承重墙,新增了一个通往二楼的楼梯。


▲这是原始户型和改造之后的,主要是拆除了部分的承重墙,新增了一个通往二楼的楼梯。

客厅跟餐厅在同一空间,整体是浅色基调,墙面刷成淡淡的灰色,再搭配木色家具,楼梯也做成木色,让整个客餐厅在时尚大方的同时又不显冰冷。

▲从入户门进来直接就是餐厅,没有玄关,一览无遗,也使得空间更加通透。

▲虽然没有玄关,所以在进门的右手边摆放了一个成品矮鞋柜,餐边柜、电视柜,书柜都沿着这个墙面摆放,组成了一排美观与实用并存的收纳柜组合。


▲由于面积有限,所以餐桌只能靠墙摆放,留出过道的空间。天花板上的吸顶灯是老婆在网上买的,和家里整体风格超搭。

▲五彩的仿真水草莲心花,装饰了餐桌,在用餐时也能有着灿烂的心情。


▲电视背景墙刷成淡淡的灰色,没有做任何造型,简单地摆放了木色电视柜。

▲大飘窗设计超级好,客厅和卧室都有,虽然我家是江景房,但是只能看到一点点江。

▲米色的布艺沙发,比白色耐脏,比灰色明亮,并配以蓝色抱枕点缀,更显活力。

▲沙发背景墙左边的白色门通往阳台洗衣房区域。

▲滚筒洗衣机放在洗衣台下方,节省空间。

▲沙发背景墙是通往二楼的楼梯。上面就是赠送的顶层露台,只有6~7平方的大小。

▲楼梯口的顶面过道做了简单的吊顶,四边角用石膏线包住,做出来的效果很棒。


▲卫生间做好了干湿分离,带有储物功能的镜柜,满足了日常收纳需求。马桶背面采用了两种颜色的墙砖拼接,以此来分隔空间,让整体看起来更有层次感。
由于空间足够狭长,淋浴房选择了一字型推拉门式的,把大量水汽阻隔在了里面,保障了马桶区和洗漱区的干燥,减少细菌滋生。


▲厨房空间还算大,就采用了L字型灶台,可以同时容纳几人在厨房操作。


▲墙砖特地选了和橱柜差不多的颜色,这样不会显得突兀,更像一个整体。

▲超大容量的四开门冰箱,再也不用担心食物会放不下了。果蔬、肉类、零食饮料,都可以好好分类存放,互不影响。


▲一楼的次卧是留作备用的,以应对家里来客人的情况。所以只摆放了一个小型衣柜和斗柜,足够当做简单的收纳使用。

▲L字形大飘窗,窗台台面铺贴的是木地板,这样就不会感到冰冷。

▲主卧就是我俩的卧室了。由于小朋友还小,离不开大人的照顾,便在双人床边摆放了一张小床,方便随时照看。

▲主卧色调同样是以浅灰色为主,搭配木色的床和精心挑选的浅粉色格子床单,一切从简。

▲平时很少看电视,但是主卧安装壁挂电视机,方便给家里的小朋友播放益智电视。

▲飘窗延续了次卧飘窗的设计。



▲上到二楼楼梯口,左手边即是一面大的落地窗,窗外风景尽收眼底。在楼梯口做了个小小的展示柜,平时可以放上一些装饰品、玩具手办、或者旅游带回来的展览纪念品。

▲二楼的儿童房,是计划等孩子大了需要私人空间的时候作为他的卧室。以蓝白色为主色调,搭配充满童趣的木马图案圆形顶灯,换上颜色比较鲜艳的被子,让整个氛围变得更活跃欢快。

▲床上放着龙猫、大棕熊、小兔子毛绒玩具,并在一面墙壁上设计了一扇拱形窗,蓝色的怪物萨利坐在窗沿上,让儿童房更接近动画片里的美好。