网友小谢居住在北京房山,需要装修的房子位于汇豪山水美地小区。房子实用面积52平米,一房一厅,装修预算7万。

原始户型图
实用面积52平米居住人口4(夫妻,老人,小孩)
喜爱风格不限,现代,简约都OK房屋布局一房一厅
装修方式全包装修预算7万
房子缺点长筒型,一面有窗,朝南采光,进门是地台,长条桌,双人床,沙发,飘窗(也做成了地台的形式),目前采光比较好,但没有独立卧室,设计不合理。
具体需求1、想设计出两个房间,年轻两口住一间,老人带小孩住一间(孩子才几个月大)。是否能做成榻榻米,地台的形式,睡觉的空间能大一些。
2、因为面积有限,希望收纳空间多一些。
3、目前是厨房和卫生间面积都不小,厨房大点可以,我觉得卫生间还可以适当小一些,或者是这两个房间不动,只动那个长条的格局。
设计师·提供了以下3个设计方案:

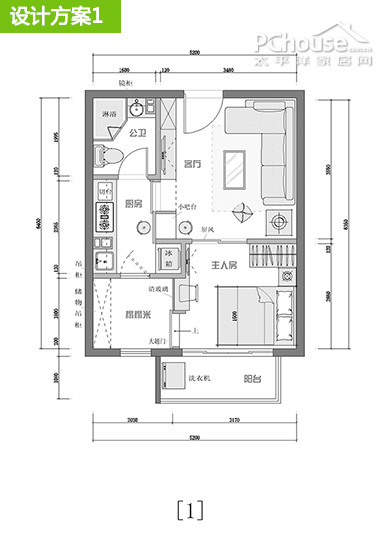
方案1平面设计说明:
1、 原厨房位改为榻榻米,可作休闲空间、储物、书房、以及临时睡房。
2、 进大门右边为鞋柜,鞋柜、电视柜、小酒吧一体设计,更具整体性美观。
3、 小酒吧位置可作二人用餐空间、上做储物或装饰柜。
4、 想增加储物空间可将小酒吧位置改为储物柜。双趟门则要改为单趟门。
5、 厨房考虑风水因素、建议冰箱前做一个屏风门。
6、 榻榻米入口经主人房,靠墙位增设储物吊柜(建议离地至少1米)。
7、 榻榻米与厨房墙体局部采用磨砂玻璃,增加厨房自然光线。想整个房子更通风与方便使用,可做成活动通风门。虽对卫生间门,但主门是大趟门,风水上无大碍。
8、 主人房增设小书台,与榻榻米间隔采用固定磨砂玻璃。也可选用清玻璃,使不大的空间更为宽敞。大趟门选用清玻璃亦如此。
9、 主人房趟门磨砂玻璃,可增加客厅自然采光,正对大门做固定趟门,可设计成屏风形式。若想要更好的隔音效果,双趟门则改为单掩门,但掩门局部区域必须采用磨砂玻璃。
10、主人房电视机为旋转电视(背支架旋转)。

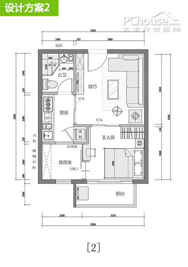
方案2与方案1区别:
1、 入厨房位置小酒吧位取消,做成简单的双趟门。
2、 榻榻米与厨房局部墙,作固定采光磨砂玻璃。

方案3含内尺寸、平方面积以及整个框架结构示意。将所有房门全打开可示整个空间、以及空气是流通的。
局部空间设计效果图参考:

客厅

主卧

主卧

次卧