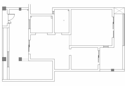
1平层改造 改造前

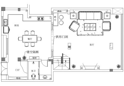
1平层改造 改造后

2别墅改造 改造前

2别墅改造 改造后
很多装修过房屋的市民都遇到过一件特别棘手的事情:明明看房的时候,户型图上的每个房间都十分顺眼,但是交房后准备装修时,却发现尺寸比例、空间进深或多或少都存在着一些瑕疵,甚至有的户型还存在明显“硬伤”,让住户十分头疼。
那么,当前较为集中的户型问题有哪些?针对性的改造方案有几种?改造过程中,哪些“雷区”绝对不能逾越?本期,记者邀请到拥有从业10多年的资深设计师为市民讲解关于户型改造的那些事。
现状:不容回避的十大户型问题
走访中记者发现,除了户型本身存在的问题,不少市民在房屋装修过程中还会为了提高使用率和功能性,针对性地进行房屋布局改造。究其原因,主要是因为当前新房市场基本上是期房,在售楼部只能看资料、图片以及户型模型,室内的家具、洁具等都是缩小版的模型,容易被误导。
记者了解到,虽然北京有的项目在工地上也设置有实体样板间方便购房者进一步了解户型,但是,不少市民还是看出了些许门道:“不知道大家注意到没有?有些样板间的家具尺寸明显偏小、满足不了实用性;还有的甚至整个房屋只有2-3个中等偏小柜子,根本满足不了正常家庭的使用需要。”正在为户型改造而苦恼的市民李先生略带调侃地告诉记者:“买房就像是前期在征婚网站上看到的是美女照片,真正见面时往往是照片变‘照骗’,真的很伤心。”
对此,资深设计师总结了楼市中常见的十项户型问题:
1、资料上没有的结构柱出现在房间中,影响功能和视觉效果;
2、公卫生间的沉箱下沉深度不够,业主只能买非标而深度浅的蹲便器;
3、厨房的排水高出地面,没有地漏,在日常使用中不方便;
4、卫生间的土建层高不够,安装完吊顶层高不够,感觉压抑;
5、厨房面积很小,且和生活阳台连为一体,为了满足厨房功能无奈把生活阳台连为一体;
6、卫生间是正方形的,面积很小,安装了便池洗澡时连人站的地方都没有;
7、卧室偏小,放一张小床和一个衣柜,人进出都需要侧身;
8、有的房间开间小,放置床后床边离墙只有30-40厘米,不能增加其它功能;
9、进防盗门后,家里的所有房间门尽收眼底,一览无余;10、房间人流动线混乱,房间面积浪费很大。
>>>实验进行时<<<
这套位于莱茵水岸的房屋住户是三代五口人,想要一个独立的书房,对主卧室的空间要求大,要有独立的衣帽间,一个休闲区域。
由于户型土建结构中规中矩,各个空间是传统布局,进出客厅的主通道空间比较窄,所以这套房的布局在不影响安全的前提下,大胆加以改造,增加了独立书房,主卧增加了独立衣帽间和休闲区,通过利用透过儿童房的自然光改变以前比较暗的过道,使过道光线柔和。
儿童房之前放一个小衣柜和一张床后就没有多余的空间,改造后,儿童房新增了一块活动空间。
以前的大阳台改造成两个独立的空间,一个作为生活阳台,一个作为主卧的休闲区,这样既不浪费空间,又完善了业主的使用功能空间。
这是西岸第壹城别墅的一楼户型图,原有土建进门处留有室内入户花园,厨房有5平方米左右,餐厅有8平方米左右,卫生间有3平方米左右,外带一个客厅和客房。从图纸上可以看出所有使用空间局促,面积和功能相对于整幢别墅来说不协调,功能上也不能达到业主要求。
通过努力,把这层的所有空间重新做了整体规划。由于户外有花园,所以取消了室内入户花园。原有土建结构在进入客厅的过程中,空间狭窄、零乱,在设计过程中把原有餐厅和厨房区域做成一个整体。把原有卫生间拆除,在它的对面重新做一个卫生间,这样卫生间相对隐蔽、独立,从而把人流动线规划,视觉空间扩大,做出一个32平方米的大餐厅带开放式厨房,并通过其它的装饰使效果豪华大气。
警惕:
改造“雷区”
千万不能碰!
很多时候,房屋原来结构并不能很好地满足使用要求,这种情况下,就需要对房屋的结构进行一定的改变。但是,房屋结构也不是说想怎么改变就怎么改变的,在改变结构时,是要遵循一定原则的。
设计师表示,其中最为关键的一条,就是市民在对房屋结构进行改造时,必须事先与物业联系,或向原设计单位或者具有相应资质等级的设计单位确认后再施工。施工前还要报物业管理部门备案,获批后方能施工。
施工过程中,他指出五大“雷区”绝不能碰。
1、承重墙一律不能动。承重墙承载着整栋大楼的重量,维持着整个房屋结构的平衡。破坏了承重墙,也就是破坏了这个力的平衡,造成的后果不可预估。除了承重墙不能拆除,其他轻体墙也不能随便拆除,因为有的轻体墙也承载着房屋的部分重量。比如,横梁下面的轻体墙就不可以拆——因为它也承担着房屋的部分重量。
2、嵌在混凝土中的门框,最好不要拆除。如果真的拆除或改造,是会对建筑结构产生一定的危险,会降低房屋的安全指数,另外重新安装新的门也比较困难。
3、矮墙不能拆除或改变。一般房间与阳台之间的墙上都有一门一窗,这些门窗可以拆除,但窗以下的墙不能拆,因为这段墙是“配重墙”,它就像秤砣一样起着挑起阳台的作用,如果拆除这堵墙,就会使阳台的承重力下降,导致阳台下坠。
4、梁柱不能拆。梁柱是用来支撑上层楼板的,随意拆除或改造可能会造成上层楼板下掉,非常危险,梁柱万不可拆除或改造的。
5、墙体钢筋不能动。在埋设管线时,如将钢筋破坏,就会影响到墙体和楼板的承受力,留下安全隐患。
希望以上内容能对各位朋友起到帮助作用,更多装修资讯请关注苏皖工长俱乐部。